Grundlagen
- Schlafzimmer: 3
- Badezimmer: 1
- Zimmer insgesamt: 4
- Fläche: 98 Quadratfuß
- Baujahr: 1981
Beschreibung
-
Beschreibung:
Willkommen in Ihrem neuen Zuhause: Dieses charmante Reiheneckhaus kombiniert urbanes Leben mit naturnaher Umgebung in begehrter Lage in der Gottfried-Keller-Siedlung in Halle (Saale), nur 3 Kilometer vom Stadtzentrum entfernt.
In einer familienfreundlichen Nachbarschaft finden Sie Kindergarten, Grundschule und Gymnasium in direkter Nähe. Die Autobahn ist nur 2,5 Kilometer entfernt, was eine ideale Anbindung gewährleistet. Einkaufsmöglichkeiten und Freizeitaktivitäten finden Sie ebenfalls in der Umgebung.
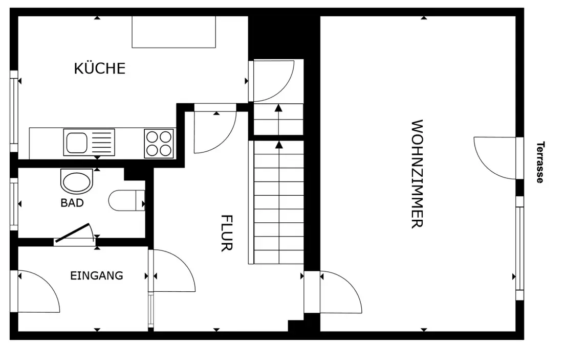
Das Haus bietet 100 m² Wohnfläche auf einem 341 m² großen Grundstück mit vier Zimmern, drei Schlafzimmern, einem hellen Badezimmer und einem Gäste-WC. Eine Gaszentralheizung und isolierverglaste Fenster sorgen für modernen Wohnkomfort. Ein Kamin sorgt für behagliche Wärme.
Entspannen Sie auf der großzügigen Terrasse mit Garten, Pool und einer Sauna.
Dieses Reiheneckhaus ist ideal für Familien und Berufstätige, die ein lebendiges und ruhiges Umfeld schätzen. Entdecken Sie Ihren neuen Wohntraum in diesem harmonischen Viertel.
Ausstattung
– Gaszentralheizung innerhalb der letzten Jahre erneuert (Viessmann Vitodens 200)
– Reiheneckhaus
– Flachdach
– Außenwände gedämmt
– isolierverglaste Fenster (Baujahr 2011)
– Kamin innerhalb der letzten Jahre nachgerüstet
– 100 m² Wohnfläche
– 341 m² Grundstücksfläche
– 4 Zimmer
– 3 Schlafzimmer
– 1 Badezimmer mit Dusche und Fenster
– 1 Gäste-WC
– Pool
– Nebengebäude
– Carport
– großzügige überdachte Terrasse (Ausrichtung Westen)
– Sauna und Bar im Keller
– Bodenbeläge: Laminat, Fliesen, PVCLage
Das charmante Reiheneckhaus befindet sich in einer der begehrtesten Lagen von Halle, nur etwa 3 Kilometer vom pulsierenden Stadtzentrum entfernt. Diese Immobilie bietet eine perfekte Balance zwischen urbanem Lebensstil und ruhiger Wohnlage. Die Umgebung ist von einer harmonischen Mischung aus städtischen und natürlichen Elementen geprägt, die den Bewohnern eine exzellente Lebensqualität bietet.
Familienfreundlichkeit wird in dieser Gegend großgeschrieben. Ein Kindergarten ist bequem in etwa 0,5 Kilometern fußläufig erreichbar. Auch eine Grundschule ist nur rund 1 Kilometer entfernt. Gymnasiasten profitieren von der guten Anbindung und erreichen ihre Schule ebenfalls schnell, da sie nur etwa 2 Kilometer entfernt liegt. Neben dieser hervorragenden Bildungsinfrastruktur bietet die nahegelegene Autobahnanbindung in etwa 2,5 Kilometer Entfernung den Bewohnern eine optimale Vernetzung und erleichtert die Mobilität sowohl innerhalb der Stadt als auch überregional.
Die nähere Umgebung zeichnet sich durch gut ausgebaute Infrastruktur aus. Verschiedene Einkaufsmöglichkeiten sind in einem Umkreis von nur 1,5 Kilometern bequem zugänglich. Zudem gibt es ein reichhaltiges Angebot an Freizeit- und Naherholungsmöglichkeiten, die sich innerhalb von 3 bis 5 Kilometern befinden. Hier wohnen Sie in einer harmonischen Gemeinschaft, die viel Wert auf Sicherheit und ein angenehmes Miteinander legt. All diese Faktoren machen das Reiheneckhaus zu einem idealen Wohnort für Familien, Berufstätige und all jene, die das Leben in einer lebendigen und zugleich entspannten Umgebung schätzen.
Alle Beschreibung anzeigen
